


楚天都市报讯(记者陈俊)9月9日,秋高气爽,金菊飘香,儿童公园西侧人山人海,随着挖土机的隆隆马达声,宜昌市重点文物保护单位、西陵八景之一——古佛寺修复扩建动工了。
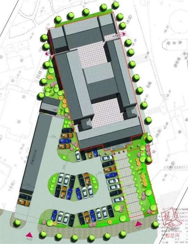
这次修复扩建对原来大殿进行落架重修,并新建天王殿,钟楼,鼓楼,两侧僧寮区,藏经阁及大型地下设施。规划用地2000余亩,总建筑面积3500多平米,总投资5000余万。记者从建设方了解到,拟建地面停车位40个,立体式停车位3层41个,总停车位81个。设计天王殿2层,钟鼓楼2层,大雄宝殿2层,僧寮2层,藏经阁2层。
整个建筑由寺庙建筑和广场建筑组成,一个大型停车场加一幢公厕组成配套设施齐全的建筑群。场区沿珍珠路分别设置一个消防入口,可分别进入各个区域,主要车行道顺应建筑基本呈环线状,简洁便利的交通体系,将厂区各功能区和前期外部交通系统紧密相连。
施工方川英古建筑公司的工作人员唐先生告诉记者,古佛寺是宜昌市重点文物保护单位,重修方案经多方论证,聘请有丰富经验的古建筑设计公司湖北海业公司设计,从设计,购买材料到施工,都严格遵守古建筑施工管理规范,在保持原貌、文物的基础上,保证创新的古佛寺庄严肃穆,成为名副其实的西陵美景。
古佛寺的前世今生
据考证,古佛寺座落于湖北省宜昌市西陵区现珍珠路103号,始于元代。整座古刹坐东朝西,造型庄重,古朴典雅,是目前宜昌市内仅存的一座古寺庙建筑。
古佛寺与寺内雕成于元代至元三年的释迦牟尼佛像,1963年被市政府定为市重点文物。1988年,经北京和本省有关专家考察鉴定,此寺被认定为市级重点保护文物。 1999年该市在申报省级历史文化名城中,也将此寺作为重点文物列入申报材料。
后因历史因缘故,寺院规模逐渐缩水,目前仅儿童公园一隅。历史上宜昌地区的历届佛教协会会址都设立在古佛寺,1912年、1928年、1936年的宜昌地区佛教协会先后都成立于古佛寺。
今天市民看到的古佛寺,是重建于1927年,结合宜昌地方建筑风格设计营造的佛教殿堂,是三峡地区珍贵的建筑遗产。
古佛寺历史定位
据《宜昌县志》所载,宜昌有六处城市古建筑,古佛寺是宜昌城区唯一幸存的较为完好的寺庙古建筑,也是反映宜昌历史上佛教活动的纪念性古建筑之一,又是一座由古代向近代过度的典型建筑,具有一定的历史、艺术、科学价值。除了让人惊叹其古老外,寺庙的建筑本身也充满了艺术性。在建筑造型、图式、内部装饰和色彩运用等方面,都有着浓厚的文化底蕴。
来源:楚天都市报
原链接:http://news.cnhubei.com/xw/hb/yc/201809/t4162050.shtml
实习编辑:陈涵
主编:龙梅
